Wir finden für dich die Top-Angebote bei über 2.500 Anbietenden.
Jetzt kostenlos starten
Bausubstanz & Energieausweis
Baujahr
1964
Objektzustand
Gepflegt
Heizungsart
Öl-Heizung
Wesentliche Energieträger
Öl
Energieausweis
liegt vor
Energieausweistyp
Verbrauchsausweis
Energieverbrauchskennwert
105,1 kWh/(m²*a)
Baujahr laut Energieausweis
1964
Services für dich
Tipps für Gewerbe-Suchende
Wertvolle Tipps rund um die Planung und Suche von Gewerbeimmobilien kompakt zusammengestellt.
u.a. zu Existenzgründung, Standortwahl, Gewerbemietvertrag, Arbeitsrecht u.v.m.
Jetzt informieren
Objektbeschreibung
Die Immobilie befindet sich in einem gepflegten Zustand und wurde 1964 errichtet. Der Laden wurde zuletzt als Imbiss genutzt und könnte so wieder belegt werden.
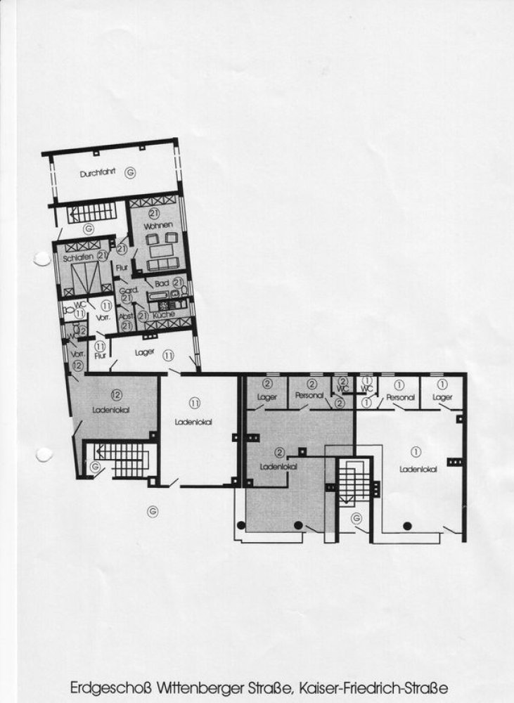
Das Ladenlokal teilt sich auf insgesamt 77 m² auf und verfügt neben einer seperaten Küche, Flächen zur Lagerung.
Die Einheit lässt sich sowohl von Vorne, als auch von Hinten durch einen separaten Eingang betreten und verfügt gem. der Teilungserklärung über zwei Stellplätze im Hof.
Bei der angebotenen Gewerbeeinheit handelt es sich um die TE11 - diese ist entsprechend mit der Ziffer 11 im Grundriss bezeichnet.
Ausstattung
- Fliesenboden
- Grosse Ladenfläche
- Öl- Zentralheizung
- 10 Meter Schaufensterfront
- 2 Stellplätze
In dem Ladenlokal war bereits eine Entlüftung verbaut, diese kann vermutlich wieder angeschlossen und genutzt werden - dies müsste durch eine Fachfirma geprüft werden.